NEW

栄区野七里 中古戸建て 第1

4,480万円

神奈川県横浜市栄区野七里1丁目

根岸線「港南台」駅バス15分「西ヶ谷」停歩4分

東海道本線「大船」駅バス27分神奈川中央交通「八軒谷戸」停歩4分

京急本線「金沢八景」駅バス22分神奈川中央交通「八軒谷戸」停歩4分

価格
4,480万円
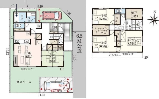
間取り
4LDK+S(納戸)
土地面積
169.05㎡
所在地
神奈川県横浜市栄区野七里1丁目
交通

根岸線港南台」駅 バス15分 「西ヶ谷」 停歩4分

東海道本線大船」駅 バス27分 神奈川中央交通「八軒谷戸」 停歩4分

京急本線金沢八景」駅 バス22分 神奈川中央交通「八軒谷戸」 停歩4分

建物面積
126.18㎡
築年月
1998年8月(築27年)

現地案内会

日時 2026年2月1日 ~ 2026年3月31日  10:00 ~ 19:00
  • ※事前に必ずお問い合わせください
  • * * * * 欲しい家がきっと見つかる* * * *

    グレイスフルホームは地域密着を合言葉に営業しております。
    広告に掲載していない未公開物件も多数ございます。

    ◇◆現地説明会開催中◆◇(事前にお問い合わせ下さい)
    日時/現地説明会はお時間は問いません。
    お時間のご都合が合えば、いつでもご対応致します。
    お気軽にお申し付け下さい。

    ◇貴重なお時間の中で、ご希望の情報をご案内します◇
    お客様のご都合に合わせて、短時間のご案内も可♪
    じっくりと沢山の物件情報のご案内も可♪ ご都合に合わせたご紹介をします♪

    ~おおよその所要時間や内容は、下記をご参考ください~
    〇ご希望条件のご相談(30分~)
    〇資金計画のご相談(30分~)
    〇現地/物件見学(60分~)
    〇周辺環境のご紹介(60分~)
    ご来場の際は、事前にご予約をお願いします♪

    ◆◇住宅ローン相談会のお知らせ◇◆
    当社では、個別で住宅ローンの相談会を実施しております。
    実際に物件をご覧いただき現地にて月々のお支払いを試算致します。
    ご来場の方には、住宅ローンのメリット・デメリット・住宅ローンの仕組みについてもわかりやすくご説明させていただきます。
    初めての方でも分かりやすく物件探しができる環境を整えておりますのでお気軽にご相談ください!!
    当日のご案内もスピーディーに対応させていただきます。

    ◇■ご予約・お問い合わせ先■◇
    電話番号/045-825-3110

    ~ご来店でじっくり相談したい方~
    ■グレイスフルホームまでお越し下さい■
    お車でカーナビご利用の方は 「横浜市戸塚区品濃町524-2」とご入力ください。
    近隣に提携駐車場ございます。
    1階が接客スペースとなっております。

物件の特徴

  • バストイレ別

  • TVモニタ付きインターホン

  • カウンターキッチン

  • 独立洗面台

セールスポイント

+。~大和ハウス施工のゆとりある快適住宅~。+

◆南側がお庭のためリビングの開放感〇
◆4LDK+納戸+WIC♪圧倒的な広さが魅力♪
◆リノベ済みのためそのままご入居いただけます♪

基本情報

販売戸数
-
総戸数
-
間取り / 詳細
4LDK+S(納戸)
LDK 16.0帖/和室 6.0帖/洋室 8.5帖/洋室 6.5帖/洋室 5.3帖/S 3.0帖
向き
建物面積(坪数)
126.18㎡(38.16坪)
土地面積(坪数)
169.05㎡(51.13坪)
建ぺい率 /
容積率
50%/80%
築年月
1998年8月(築27年)
駐車場 /
月額料金
有(2台) 0円
土地権利
所有権
土地
(敷金 / 保証金)
- / -
建物構造
木造 / 2階建
傾斜地部分面積
-
路地状敷地
-
私道負担面積
-
セットバック
高圧線下面積
-
施工会社
-
用途地域
第一種低層住居専用
地目 / 地勢
宅地 / -
接道状況
角地(北 公道 4.5m)(東 公道 6.5m)
国土法届出要否
不要
都市計画
-
総区画数 /
販売区画数
-/-
現況
空家
その他
法令上の制限
-
取引態様
仲介
引渡し
即時
リフォーム
    2025年11月
    キッチン 浴室 トイレ 壁 床
取引条件の
有効期限
2026年02月19日

設備条件

設備条件
  • 陽当り良好 / 閑静な住宅地 / リフォーム済 / 現地案内会 / フローリング / バルコニー / 都市ガス / 公営水道 / 公共下水 / 駐車2台可 / システムキッチン / カウンターキッチン / バス・トイレ別 / 追焚機能浴室 / 温水洗浄便座 / 洗面台 / トイレ2ヶ所 / 独立洗面台 / 床下収納 / ウォークインクロゼット / 収納豊富 / TVモニタ付インターホン
設備(その他)
    -

その他

物件番号
101167202
管理コード
-
建築確認番号
-
情報更新日
2026年02月05日
次回更新予定日
2026年02月19日
取扱会社
  • 株式会社グレイスフルホーム
  • 神奈川県横浜市戸塚区品濃町524-3 KATOビル 3階
  • TEL:045-825-3110
  • 神奈川県知事 (1) 第032711号

周辺施設

  • 横浜市立庄戸小学校の画像

    小学校

    横浜市立庄戸小学校

    980m(13分)

  • 横浜市立上郷中学校の画像

    中学校

    横浜市立上郷中学校

    1582m(20分)

  • イトーヨーカドー桂台店の画像

    スーパー

    イトーヨーカドー桂台店

    1848m(24分)

支払いシミュレーション

月々の支払額
9.6
購入希望物件価格
万円
頭金
万円
金利
%
返済額(ボーナス1回分)
万円
返済期間

※ボーナスは自動で年2回分で計算されます。

近隣の物件

  1. 栄区飯島町 新築戸建て

    横浜市栄区飯島町

    3SLDK (109.30㎡)

    4,090万円

  2. 栄区長沼町 中古戸建て

    横浜市栄区長沼町

    4LDK (101.84㎡)

    3,880万円

  3. 栄区笠間5丁目 新築戸建て

    横浜市栄区笠間5丁目

    2SLDK (106.86㎡)

    5,880万円

  4. 栄区桂町 新築戸建て

    横浜市栄区桂町

    2SLDK (105.38㎡)

    4,980万円

栄区野七里 中古戸建て 第1

栄区野七里 中古戸建て 第1

4,480万円

-

4LDK+S(納戸)(126.18㎡)

お気軽にお問い合わせください

無料お問い合わせ

株式会社グレイスフルホーム

045-825-3110

10:00~20:00

(休:火曜日・水曜日)