藤沢市高倉 新築戸建て 3号棟

5,499万円

神奈川県藤沢市高倉

小田急江ノ島線「長後」駅徒歩11分

相鉄いずみ野線「いずみ中央」駅徒歩23分

ブルーライン「立場」駅バス9分「藤沢湘南台病院前」停歩1分

価格
5,499万円
間取り
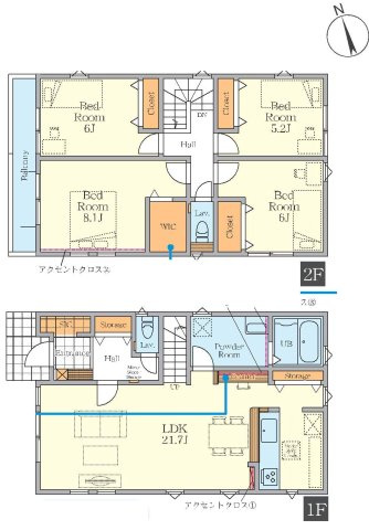
4LDK
土地面積
141.27㎡
所在地
神奈川県藤沢市高倉
交通

小田急江ノ島線長後」駅 徒歩11分

相鉄いずみ野線いずみ中央」駅 徒歩23分

ブルーライン立場」駅 バス9分 「藤沢湘南台病院前」 停歩1分

建物面積
112.30㎡
築年月
2025年8月(新築)

現地案内会

日時 2025年10月30日 ~ 2025年11月30日  10:00 ~ 19:00
  • ※事前に必ずお問い合わせください
  • * * * * 欲しい家がきっと見つかる* * * *

    グレイスフルホームは地域密着を合言葉に営業しております。
    広告に掲載していない未公開物件も多数ございます。

    ◇◆現地説明会開催中◆◇(事前にお問い合わせ下さい)
    日時/現地説明会はお時間は問いません。
    お時間のご都合が合えば、いつでもご対応致します。
    お気軽にお申し付け下さい。

    ◇貴重なお時間の中で、ご希望の情報をご案内します◇
    お客様のご都合に合わせて、短時間のご案内も可♪
    じっくりと沢山の物件情報のご案内も可♪ ご都合に合わせたご紹介をします♪

    ~おおよその所要時間や内容は、下記をご参考ください~
    〇ご希望条件のご相談(30分~)
    〇資金計画のご相談(30分~)
    〇現地/物件見学(60分~)
    〇周辺環境のご紹介(60分~)
    ご来場の際は、事前にご予約をお願いします♪

    ◆◇住宅ローン相談会のお知らせ◇◆
    当社では、個別で住宅ローンの相談会を実施しております。
    実際に物件をご覧いただき現地にて月々のお支払いを試算致します。
    ご来場の方には、住宅ローンのメリット・デメリット・住宅ローンの仕組みについてもわかりやすくご説明させていただきます。
    初めての方でも分かりやすく物件探しができる環境を整えておりますのでお気軽にご相談ください!!
    当日のご案内もスピーディーに対応させていただきます。

    ◇■ご予約・お問い合わせ先■◇
    電話番号/045-825-3110

    ~ご来店でじっくり相談したい方~
    ■グレイスフルホームまでお越し下さい■
    お車でカーナビご利用の方は 「横浜市戸塚区品濃町524-2」とご入力ください。
    近隣に提携駐車場ございます。
    1階が接客スペースとなっております。

物件の特徴

  • バストイレ別

  • TVモニタ付きインターホン

  • カウンターキッチン

  • 独立洗面台

  • 浴室乾燥機

セールスポイント

◆20帖以上の広々したリビングで家族団らんの時間を過ごせる新築戸建て

基本情報

販売戸数
3戸
総戸数
3戸
間取り / 詳細
4LDK
LDK 21.7帖/洋室 8.1帖/洋室 6.0帖/洋室 6.0帖/洋室 5.2帖
向き
南西
建物面積(坪数)
112.30㎡(33.97坪)
土地面積(坪数)
141.27㎡(42.73坪)
建ぺい率 /
容積率
50%/80%
築年月
2025年8月(新築)
駐車場 /
月額料金
有(2台) 0円
土地権利
所有権
土地
(敷金 / 保証金)
- / -
建物構造
木造 / 2階建
傾斜地部分面積
-
路地状敷地
-
私道負担面積
-
セットバック
高圧線下面積
-
施工会社
-
用途地域
第一種低層住居専用
地目 / 地勢
宅地 / 平坦
接道状況
一方(北西 公道 4.0m)
国土法届出要否
不要
都市計画
市街化区域
総区画数 /
販売区画数
3区画/3区画
現況
完成済み
その他
法令上の制限
-
取引態様
仲介
引渡し
即時
取引条件の
有効期限
2025年11月23日

設備条件

設備条件
  • 陽当り良好 / 閑静な住宅地 / 現地案内会 / フローリング / バルコニー / 都市ガス / 公営水道 / 公共下水 / 24時間換気システム / 駐車2台可 / 食器洗い乾燥機 / システムキッチン / カウンターキッチン / バス・トイレ別 / 追焚機能浴室 / 浴室乾燥機 / 温水洗浄便座 / トイレ2ヶ所 / 浴室1坪以上 / 独立洗面台 / 床下収納 / ウォークインクロゼット / ウォークインシューズクロゼット / 収納豊富 / TVモニタ付インターホン / 複層ガラス
設備(その他)
    -

その他

物件番号
97022126
管理コード
-
建築確認番号
-
情報更新日
2025年11月09日
次回更新予定日
2025年11月23日

藤沢市高倉 新築戸建ての他の物件

  1. 8号棟

    4LDK (96.46㎡)

    5,080万円(174.15万円/坪)

  2. 6号棟

    4LDK (95.63㎡)

    4,680万円(161.83万円/坪)

  3. 4LDK (105.58㎡)

    5,680万円(177.89万円/坪)

周辺施設

  • 藤沢市立長後小学校の画像

    小学校

    藤沢市立長後小学校

    474m(6分)

  • 藤沢市立高倉中学校の画像

    中学校

    藤沢市立高倉中学校

    1354m(17分)

支払いシミュレーション

月々の支払額
9.6
購入希望物件価格
万円
頭金
万円
金利
%
返済額(ボーナス1回分)
万円
返済期間

※ボーナスは自動で年2回分で計算されます。

藤沢市高倉 新築戸建て

藤沢市高倉 新築戸建て

5,499万円

-

4LDK(112.30㎡)

お気軽にお問い合わせください

無料お問い合わせ

株式会社グレイスフルホーム

045-825-3110

10:00~20:00

(休:火曜日・水曜日)