藤沢市高倉 新築戸建て 8号棟

5,080万円

神奈川県藤沢市高倉

小田急江ノ島線「長後」駅徒歩14分

相鉄いずみ野線「いずみ中央」駅徒歩19分

ブルーライン「立場」駅バス13分「団地入口」停歩12分

価格
5,080万円
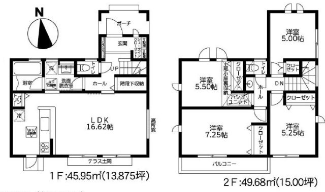
間取り
4LDK
土地面積
120.89㎡
所在地
神奈川県藤沢市高倉
交通

小田急江ノ島線長後」駅 徒歩14分

相鉄いずみ野線いずみ中央」駅 徒歩19分

ブルーライン立場」駅 バス13分 「団地入口」 停歩12分

建物面積
96.46㎡
築年月
2026年2月(予定)

現地見学会

日時 2026年1月31日 ~ 2026年2月28日  10:00 ~ 19:00
  • ※事前に必ずお問い合わせください
  • * * * * 欲しい家がきっと見つかる* * * *

    グレイスフルホームは地域密着を合言葉に営業しております。
    広告に掲載していない未公開物件も多数ございます。

    ◇◆現地説明会開催中◆◇(事前にお問い合わせ下さい)
    日時/現地説明会はお時間は問いません。
    お時間のご都合が合えば、いつでもご対応致します。
    お気軽にお申し付け下さい。

    ◇貴重なお時間の中で、ご希望の情報をご案内します◇
    お客様のご都合に合わせて、短時間のご案内も可♪
    じっくりと沢山の物件情報のご案内も可♪ ご都合に合わせたご紹介をします♪

    ~おおよその所要時間や内容は、下記をご参考ください~
    〇ご希望条件のご相談(30分~)
    〇資金計画のご相談(30分~)
    〇現地/物件見学(60分~)
    〇周辺環境のご紹介(60分~)
    ご来場の際は、事前にご予約をお願いします♪

    ◆◇住宅ローン相談会のお知らせ◇◆
    当社では、個別で住宅ローンの相談会を実施しております。
    実際に物件をご覧いただき現地にて月々のお支払いを試算致します。
    ご来場の方には、住宅ローンのメリット・デメリット・住宅ローンの仕組みについてもわかりやすくご説明させていただきます。
    初めての方でも分かりやすく物件探しができる環境を整えておりますのでお気軽にご相談ください!!
    当日のご案内もスピーディーに対応させていただきます。

    ◇■ご予約・お問い合わせ先■◇
    電話番号/045-825-3110

    ~ご来店でじっくり相談したい方~
    ■グレイスフルホームまでお越し下さい■
    お車でカーナビご利用の方は 「横浜市戸塚区品濃町524-2」とご入力ください。
    近隣に提携駐車場ございます。
    1階が接客スペースとなっております。

物件の特徴

  • バストイレ別

  • TVモニタ付きインターホン

  • カウンターキッチン

  • 独立洗面台

  • 浴室乾燥機

セールスポイント

◆閑静な住宅地にある広々とした北西角地の新築戸建て~カースペース2台~

基本情報

販売戸数
-
総戸数
3戸
間取り / 詳細
4LDK
LDK 16.0帖/洋室 4.1帖/洋室 6.1帖/洋室 5.2帖/洋室 7.7帖
向き
建物面積(坪数)
96.46㎡(29.17坪)
土地面積(坪数)
120.89㎡(36.56坪)
建ぺい率 /
容積率
50%/80%
築年月
2026年2月(予定)
駐車場 /
月額料金
有(2台) 0円
土地権利
所有権
土地
(敷金 / 保証金)
- / -
建物構造
木造 / 2階建
傾斜地部分面積
-
路地状敷地
-
私道負担面積
-
セットバック
高圧線下面積
-
施工会社
-
用途地域
第一種低層住居専用
地目 / 地勢
宅地 / 平坦
接道状況
角地(北東 公道 6.0m)(西 公道 4.5m)
国土法届出要否
不要
都市計画
市街化区域
総区画数 /
販売区画数
3区画/-
現況
未完成
その他
法令上の制限
-
取引態様
仲介
引渡し
相談
取引条件の
有効期限
2026年02月19日

設備条件

設備条件
  • 陽当り良好 / 閑静な住宅地 / 現地見学会 / フローリング / バルコニー / 都市ガス / 公営水道 / 公共下水 / 24時間換気システム / 駐車2台可 / 食器洗い乾燥機 / システムキッチン / カウンターキッチン / バス・トイレ別 / 追焚機能浴室 / 浴室乾燥機 / 温水洗浄便座 / 洗面台 / トイレ2ヶ所 / 独立洗面台 / 床下収納 / ウォークインクロゼット / 屋根裏収納 / 収納豊富 / TVモニタ付インターホン / 複層ガラス
設備(その他)
    -

その他

物件番号
97019178
管理コード
-
建築確認番号
第25UDI1K建00385号
情報更新日
2026年02月05日
次回更新予定日
2026年02月19日
取扱会社
  • 株式会社グレイスフルホーム
  • 神奈川県横浜市戸塚区品濃町524-3 KATOビル 3階
  • TEL:045-825-3110
  • 神奈川県知事 (1) 第032711号

藤沢市高倉 新築戸建ての他の物件

  1. 6号棟

    4LDK (95.63㎡)

    4,680万円(161.83万円/坪)

  2. 4LDK (105.58㎡)

    5,680万円(177.89万円/坪)

支払いシミュレーション

月々の支払額
9.6
購入希望物件価格
万円
頭金
万円
金利
%
返済額(ボーナス1回分)
万円
返済期間

※ボーナスは自動で年2回分で計算されます。

藤沢市高倉 新築戸建て

藤沢市高倉 新築戸建て

5,080万円

-

4LDK(96.46㎡)

お気軽にお問い合わせください

無料お問い合わせ

株式会社グレイスフルホーム

045-825-3110

10:00~20:00

(休:火曜日・水曜日)